תמונה של אלי שוקרי

אלי שוקרי

אדריכל, מנהל בית הספר המקוון לרוויט, כותב הבלוג "איש הרוויט"

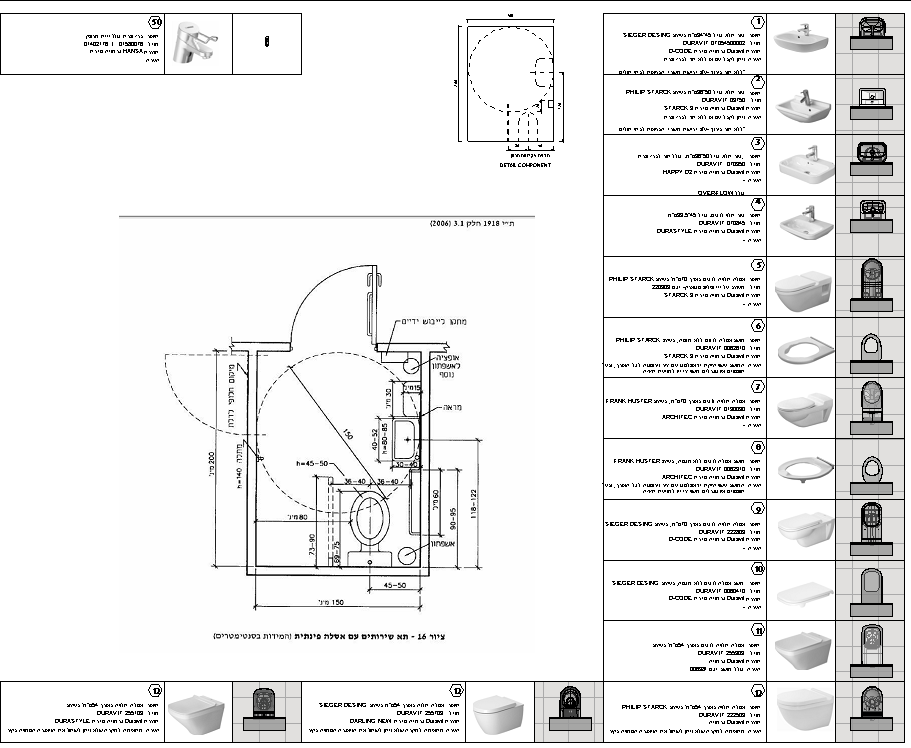
תקן ישראלי לשירותי נכים ברוויט – קבצים להורדה

נתי אברהמוב מחברת Duravit, משתף אותנו בסדרה של משפחות שהם פיתחו בהתאם לתקן הישראלי לשירותי נכים.

 
 
בין הקבצים ניתן למצוא סוגים שונים של אסלות, ניאגרות סמויות, ידיות אחיזה, סבוניות, מתקני נייר, מראה ועוד
 
 


 
תוכנית לשירותי נכים מעוצבים עם פתרונות תיכנוניים לבניה יבשה ורטובה, וכן פתרון למקרה כי אין אפשרות “לשתול” ניאגרה סמויה.
 
 
לינק להורדת ערכת תיכנון ומידול לשירותי נכים לפי תקן נגישות ת”י 1918 פרק 3.1 במערכות BIM
 
 
 
 
קיימים שני קבצים:
 
האחד התקן , plug and play , חדר שירותים מתוכנן מאובזר ומעוצב.
 
 
וקובץ ניפרד  של האביזרים לנכים בניפרד שמכילים את חדר השירותים המלא.
 


 
אם יש לכם שאלות או כל בקשה,ניתן לפנות לנתי ישירות
 
נתי אברמוב
 
טל:   03-5344577  
נייד : 054-5562322
 

Revit PRO

קורס רוויט מקיף לאדריכלים | מקוון

Revit EXPERT

קורס רוויט למתקדמים | מקוון

Revit Family

קורס רוויט בניית משפחות | מקוון

Just
Ask

צריכים עזרה ?

לתקלות ובעיות ברוויט לחצו כאן

אנשי רוויט ?

הצטרפו לקהילת אנשי הרוויט שלנו
וקבלו חומרים ומבצעים שאני שולח אך ורק להם 

תקן שירותי נכים ברוויט !

הזינו את הפרטים שלכם בטופס כאן למטה 
וקבלו את הקובץ ישירות למייל

BLACK FRIDAY 2025 עד 60% הנחה