תמונה של אלי שוקרי

אלי שוקרי

אדריכל, מנהל בית הספר המקוון לרוויט, כותב הבלוג "איש הרוויט"

SCOPE BOX ? UCS !

ברויט קיימות שתי מערכות צירים בלבד, מערכת הצירים העולמית, ומערכת הצירים של הפרוייקט.
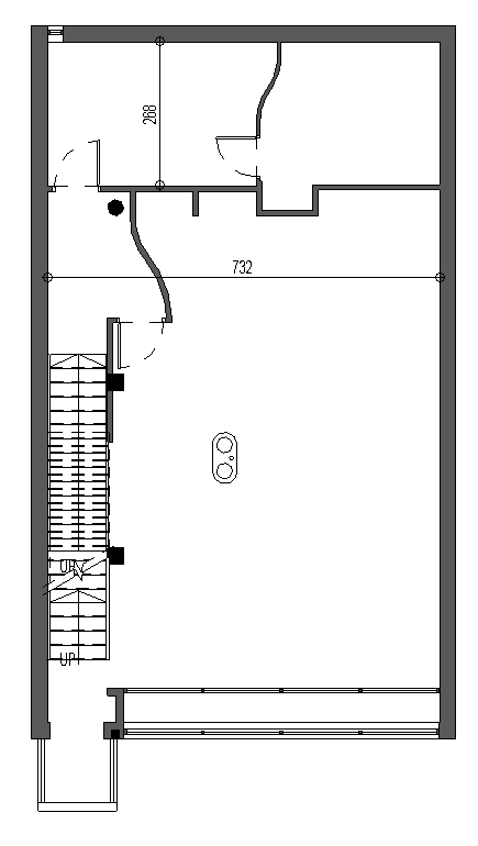
אבל מה אם לפרוייקט שלנו יש חלקים עם זויות מסויימות שנרצה לישר את התוכנית לפיהם ?
 

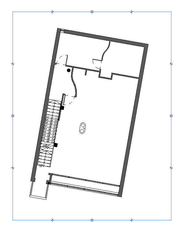
ניתן לבחור במסגרת הקרופ, REGION CROP, ופשוט לסובב אותה עם פעולת ROTATE,

התוכנית תסתובב, הקודינטות נשארות במקומן.

אבל,

זה קורה רק במבט הספציפי שאנחנו עומדים עליו.

הפתרון המערכתי הוא, לייצר SCOPE BOX, לסובב אותה, וליישם את החיתוך על כל התוכניות הרצויות.

מהו SCOPE BOX ?

* SCOPE BOX –  תיבה תלת מימדית, שניתן לקבוע  לפיה חיתוך של מבטים, וכך לדעת בוודאות שלכל המבטים חיתוך זהה.

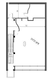
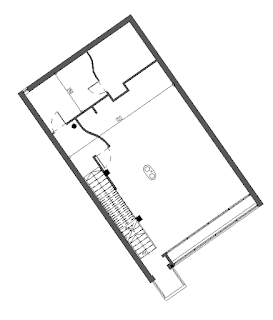
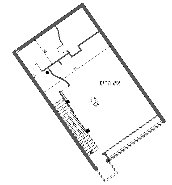
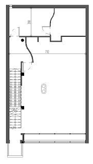
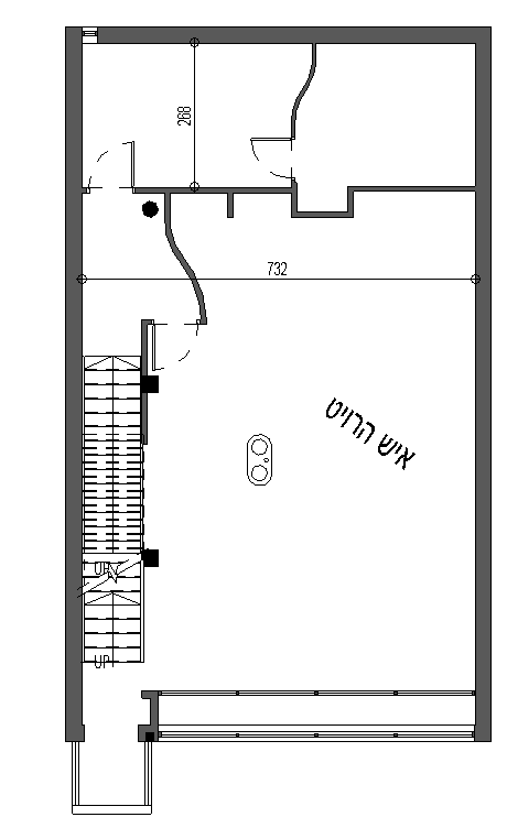
דוגמה מצויינת לשימוש בה, כאשר נרצה למקם על דף בגודל מסויים, תוכניות רציפות של המבנה,

ושכולם יהיו באותו חיתוך (ואפילו יש שיטה שיהיו באותו מקום בדף). או פירוט של איזור מסויים,

למשל חדר מדרגות, על כל מפלסיו, ונרצה שהחיתוך יהיה מדוייק ושווה בכל הקומות.

המשמעות היא, שאם נמקם SCOPE BOX ונסובב אותו, ניתן יהיה לראות את אותו סיבוב בכל התוכניות.

איך זה נעשה:

מייצרים SCOPE BOX בתוכנית, VIEW>SCOPE BOX

 

ניתן לשנות את גבולותיו ע”י משיכת החיצים בדפנות שלו.

בתלת מימד, בוחרים אותו ומגדירים את הגובה שלו.
אם התיבה לא כוללת חלקים מסויימים במודל, היא לא תוכל להיות מיושמת עליו.

 

ב PROPERTIES של התיבה נותנים לה שם שיהיה רלוונטי לשימוש.

 

 
 

בתוכנית ,בסרגל ה PROPERTIES יישום CROP VIEW, והגדרת ה SCOPE BOX הרצוי.

 
 
 
 

אם נבחר SCOPE BOX מסובב, התוכנית תסתובב.

 
 
 

כדי להקל על המעברים האלה, ניתן לייצר שכפול של התוכנית , ובמבט המשוכפל ליישם את ה SCOPE BOX המסובב.

בדרך זו יהיה לנו מבט מקורי בזוית הראשית, ומבטים מסובבים לפי הנוחות שלנו.

יש לשים לב, יישום של ה SCOPE BOX  באופציית DUPLICATE AS A DEPENDENT,

ויצירת אובייטים דו מימדיים הנמנים תחת ANNOTATE במבט שכזה , כמו מידות וטקסטים,

לא יסתובבו, וישארו בהתאם למבט שהם יושמו בו.

 
 
 
 

 

*ניתן ליישם גרידים, חתכים, חזיתות מפלסים ועוד ל SCOPE BOX

 

ותודה לטלי

Revit PRO

קורס רוויט מקיף לאדריכלים | מקוון

Revit EXPERT

קורס רוויט למתקדמים | מקוון

Revit Family

קורס רוויט בניית משפחות | מקוון

Just
Ask

צריכים עזרה ?

לתקלות ובעיות ברוויט לחצו כאן

אנשי רוויט ?

הצטרפו לקהילת אנשי הרוויט שלנו
וקבלו חומרים ומבצעים שאני שולח אך ורק להם 

BLACK FRIDAY 2025 עד 60% הנחה