למה כשיש דלת במפלס נמוך, ומעמיקים את המבט, רואים את הכנפיים שלה בתוכנית העליונה?? כלומר, אני רואה את הקיר האטום של הקומה שלי, אבל את הכנפיים של הדלת מלמטה…מאוד מעצבן (אגב, זה לא קורה עם כל דלת, תכף תבינו למה)
יש כל מיני בעיות ברויט שאנחנו לפעמים מקבלים את זה שאין להן פתרון.
כמו למשל, למה כשיש מעקה זכוכית הזכוכית לא שקופה בחזית…? תחשבו על זה (הפתרון יעלה בקרוב).
ואנחנו פותרים אותם ע"י פתרונות מקומיים שעוזרים לנו באותו רגע אבל בהמשך בעבודה כנראה יתנקמו בנו. אז גם הבעיה הבאה היא כזו.
פשוט התעלמתי מקיומה עד שהיא הטרידה מישהו שפנה אליי יותר משהיא הטרידה אותי, והחלטתי שאין מצב שאין לה פתרון.
אז הבעיה היא במי שבנה את הדלת ולא בקובץ הפרוייקט.
כל מה שצריך לעשות הוא, להיכנס להגדרות הדלת, לסמך את הקווים שמייצגים את פתיחת הכנף, ולהגדיר אותם ככה שלא יופיעו אם הדלת לא נחתכת.
אז איך עושים את זה?
יש לי את המודל הבא, שני מפלסים, במפלס התחתון שתי דלתות, במפלס העליון שלושה חלונות.
שני עצים וקיר נמוך בקרקע.
כך נראית הקומה העליונה,
כשהיא נחתכת בגובה 120 ס"מ ועומק המבט הוא עד למפלס הקומה.
עכשיו נרצה לראות עד הקרקע,
אז נגדיל את טווח קווי המבט
עוד על הגדרת עומק המבט ניתן לקרוא הפוסט הבא
וזה יראה ככה
אנחנו חותכים בגובה 120 ס"מ של המפלס העליון,
רואים קווים של אותו מבט עד לגובה המפלס,
וקווי מבט חלשים על לקרקע.
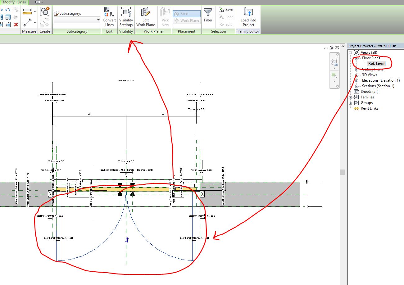
בוחרים את הדלת הסוררת
ובוחרים ב EDIT FAMILY
נפתח קובץ הבניה של הפמלי,
עוברים לתוכנית (!)
ובוחרים את הקווים המייצגים את פתיחת הכנף
(לשים לב שלא בוחרים דברים אחרים)
ובוחרים ב VISIBILITY SETTINGS
נפתח חלון, ובו לא מסומן V בשורה שאומרת שהקווים האלה יופיע רק אם האלמנט נחתך
מסמנים V
OK
ומטעינים מחדש את הפמלי לפרוייקט
עולה השאלה הבאה,
יש לבחור באופציה הראשונה
וכבר לא רואים את כנפיים


