אז ניתן לפצל חתך למי שעדיין לא יודע, ולמי שכן יודע, יש לפיצול חתך עוד אופציות.
חתכים
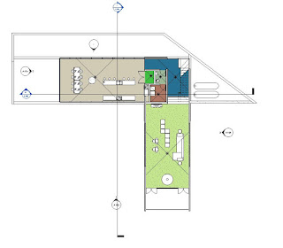
אז יש לנו חתך
ואנחנו רוצים שהוא יעבור דרך המבנה בשני האגפים
בוחרים בחתך
SPLIT SEGMENT
חותכים את החתך וגוררים למקום המתאים
נעבור לחתך עצמו
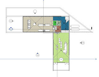
בניצב לחתך שלנו, יש עוד חתך.
שחותך דרך סקילייט בגג כמו שזה נראה כאן.
נעבור אליו
ניתן לראות שבגלל שהוא באמת חוצה סקילייט בגג
ולא בטוח שאנחנו רוצים שהוא יחתוך כאן
נאמר שהיינו רוצים שהחתך יעבור בשיא גובה הגג
מה נעשה?
נפצל אותו ורטיקלית !
בדיוק כמו שעשינו בתוכנית, רק בחתך
חזיתות
יש לנו חזית
כדי לראות איפה היא חותכת
נבחר בראש חץ של החזית
ויופיע קו שהוא קו החיתוך
הרבה פעמים אנשים נאבקים עם הקו,
כדי למקם אותו בדיוק במקום שייתן את החיתוך הרצוי.
אבל גם אותו אפשר לפצל
בדיוק כמו את החתך




