תמונה של אלי שוקרי

אלי שוקרי

אדריכל, מנהל בית הספר המקוון לרוויט, כותב הבלוג "איש הרוויט"

תיק עבודות

עוד מאתר ISSUU המאגד בתוכו ספרים, מאמרים, מצגות ותיקי עבודות מקוונים.
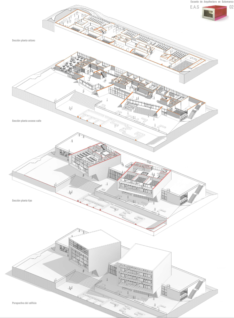
והפעם תיק עבודות של Paco Pepe Ramos Corrales מסבילה שבספרד.
בו הוא מציג מספר פרוייקטים בדרך  בעזרת חתכים, חזיתות, סכמות פיצוץ, סכמות תנועה,
רינדורים, מערכות מיזוג אויר ומים, ניתוחי מזג איור ועוד. הכל בגרפיקה פשוטה וברורה.

ממליץ בחום

Revit PRO

קורס רוויט מקיף לאדריכלים | מקוון

Revit EXPERT

קורס רוויט למתקדמים | מקוון

Revit Family

קורס רוויט בניית משפחות | מקוון

Just
Ask

צריכים עזרה ?

לתקלות ובעיות ברוויט לחצו כאן

אנשי רוויט ?

הצטרפו לקהילת אנשי הרוויט שלנו
וקבלו חומרים ומבצעים שאני שולח אך ורק להם 

BLACK FRIDAY 2025 עד 60% הנחה