אופציית ה View Range
נמצאת ב Properies של כל תוכנית.
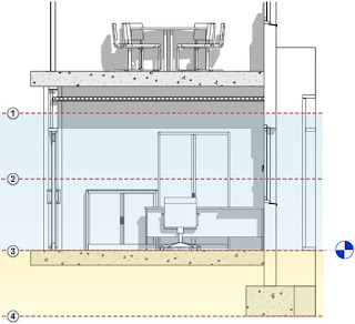
הגדרות הגובה של כל המפלסים –
צריכים להיות בהיררכיה הנכונה,
צריכים להיות בהיררכיה הנכונה,
אחרת לא יהיה ניתן לאשר חלון זה.
כלומר,
לא ניתן ליישם Top נמוך מ CutPlane,
לא ניתן ליישם Top נמוך מ CutPlane,
ולא ניתן ליישם View Depth גבוה מ Botoom.
שימוש נפוץ לשינוי הטווח,
למשל,
בתוכנית גגות,
למשל,
בתוכנית גגות,
היינו רוצים לראות ממפלס הגג עד לקרקע.
כלומר שה VIEW DEPTH יהיה עד למפלס התחתון,
או לא מגובל,
וכך היינו רואים את כל המבנה עד לקרקע.
קורה לעיתי קרובות,
שעובדים על תוכנית של מפלס ביניים,
או מפלס של קומת גלרייה,
וכך היינו רואים את כל המבנה עד לקרקע.
קורה לעיתי קרובות,
שעובדים על תוכנית של מפלס ביניים,
או מפלס של קומת גלרייה,
בו אנחנו כן רוצים לראות את המבט מעבר למפלס רצפת הקומה.
כברירת מחדל,
בתוכניות רואים עד לרצפת המפלס ללא קווי מבט רחוקים.
בתוכניות רואים עד לרצפת המפלס ללא קווי מבט רחוקים.
בעזרת אופצייה זו ניתן לתקן את המצב.
כברירת מחדל,
קווי המבט הרחוקים יוצאים בקווים שחורים רגילים,
על מנת שקווי המבט הנראים תחת הגדרה של View Depth,
שהם בעצם הקוים הרחוקים,
יהיו חלשים יותר בהיררכיית הקוים,
יש ללכת להגדרות תצוגת הקווים דרך
Manage>Additional settings<Line Styles
ולשנות את סוג הקו הנקרא Beyond
לקו בהיר יותר, אפור לדוגמה.
לקו בהיר יותר, אפור לדוגמה.
זהו סוג הקו ששולט על נראות קווי המבט.


